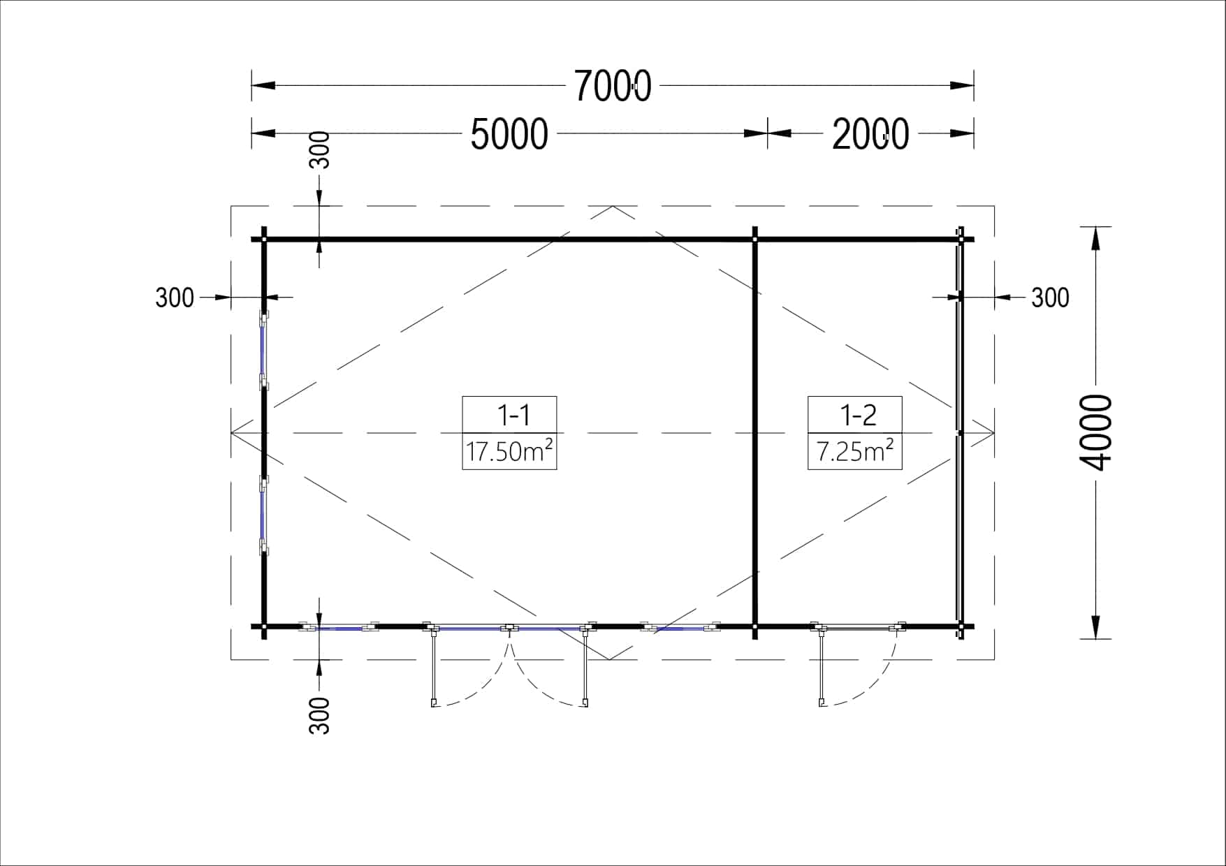
Blockbohlenhaus LEONIE 28m²
Das Blockbohlenhaus LEA (44 mm) ist eine großartige Wahl für alle, die nach einer geräumigen und vielseitigen Lösung für ihren Garten suchen. Mit einer Fläche von 28 Quadratmetern bietet es ausreichend Platz für eine Vielzahl von Aktivitäten und Bedürfnissen.
Wählen Sie die Optionen
-
Zurücksetzen
*Wandstärke
*Fußboden
Unsere Gartenhäuser werden standardmäßig ohne Fußboden, jedoch mit der Unterkonstruktion geliefert. Sie können jedoch einen Fußboden optional dazu bestellen.
Holzrahmen Fundament
Als Alternative zu unserem Betonfundament bieten wir ein maßgefertigtes, vorbehandeltes Holzrahmenfundament an, auf denen unserer Gebäude installiert werden können.
Fenster & Türen
Standardmäßig sind doppelt verglaste Fenster und Außentüren enthalten. Optional können Sie auch PVC-Fenster bestellen.
Montageservice
Der Preis für den Montageservice umfasst das Aufstellen der Blockhütte ab Oberkante des Fundaments (Wände, Dachkonstruktion, Fenster, Türen, Schlösser und sonstige Beschläge)
€ 6240,00 – € 9876,00
inkl. MwSt. Kostenloser versand
Lieferzeit: 8 bis 10 Wochen
Sie haben Fragen zum Artikel? Nutzen Sie unseren Rückrufservice oder das Kontaktformular.
Beschreibung
Das Blockbohlenhaus LEONIE ist eine großartige Wahl für alle, die nach einer geräumigen und vielseitigen Lösung für ihren Garten suchen.
Mit einer Fläche von 28 Quadratmetern bietet es ausreichend Platz für eine Vielzahl von Aktivitäten und Bedürfnissen.
Hier sind einige der bemerkenswerten Eigenschaften dieses Blockbohlenhauses:
1. Voll verglaste Flügeltüren: Die voll verglasten Flügeltüren schaffen eine helle und einladende Atmosphäre im Innenraum. Sie ermöglichen frische Luft und einen nahtlosen Übergang zwischen Innen- und Außenbereich.
2. Funktioneller Schuppen: Das Blockbohlenhaus verfügt über einen geräumigen Schuppen mit separatem Eingang, der zusätzlichen Stauraum für Ihre Gartengeräte und -ausrüstungen bietet. Dadurch können Sie Ihre Utensilien ordentlich aufbewahren und leicht darauf zugreifen.
3. Große Fenster: Zahlreiche Fenster rund um die Blockhütte sorgen für Helligkeit im Innenraum und schaffen eine gemütliche Atmosphäre. Die natürliche Beleuchtung ist ideal für verschiedene Aktivitäten.
4. Reizvoller Dachüberstand: Der reizvolle Dachüberstand verleiht dem Blockbohlenhaus Charakter und bietet einen schattigen Bereich im Freien. Hier können Sie sich entspannen und die Natur genießen.
Die LEA-Holzhütte bietet Ihnen die Flexibilität, verschiedene Zwecke zu erfüllen, sei es als Ort für Mahlzeiten im Freien, Arbeitsplatz, Hobbyraum oder Aufbewahrung. Ihr traditionelles Design und ihre funktionalen Eigenschaften machen sie zu einem wertvollen und vielseitigen Element in Ihrem Garten.
Blockbohlenhaus - Qualität beginnt bei der Auswahl der Materialien
Bei Blocknohlenhaus.at setzen wir Qualität und Nachhaltigkeit an oberste Stelle. Unsere Premium Gartenhäuser entstehen aus sorgfältig ausgewähltem Kiefer- und Fichtenholz, das aus nachhaltig bewirtschafteten Wäldern stammt. Dieses Holz beeindruckt nicht nur durch seine natürliche Schönheit, sondern auch durch seine außergewöhnliche Langlebigkeit. Es bildet die Basis für erstklassige Holzbauten, die Ihrem Garten zeitlose Eleganz verleihen.
Austauschbare Position der gegenüberliegenden Wände!
Fußboden als optionales Zubehör erhältlich
Kostenlose Doppelverglasung ab 34 mm Wandstärke
Verstärkte Dachkonstruktion für langanhaltende Stabilität:
Erhalten Sie ein Dach, das Beständigkeit verspricht! Unsere verstärkte Dachkonstruktion setzt auf robuste Giebel und Dachsparren (45 mm x 135 mm oder 45 mm x 270 mm), um eine dauerhafte Stabilität zu gewährleisten und Ihr Dach vor möglichen Verformungen zu schützen.
Inklusive Fenster- und Türabdichtungen:
Unsere Gartenhäuser werden standardmäßig mit vormontierten Gummidichtungen für Fenster und Türen geliefert. Dies gewährleistet nicht nur eine effektive Abdichtung gegen Wasser, sondern sorgt auch für eine luftdichte und zugfreie Umgebung im Inneren Ihres Gartenhauses.
Hochwertiges Glas statt Kunststoff!
Bei uns setzen wir konsequent auf Qualitätsglas anstelle von Kunststoff! Alle Fenster und Türen unserer Gartenhäuser sind mit 4 mm dickem Glas ausgestattet. Diese bewusste Entscheidung unterstreicht unsere Hingabe zur Qualität und Ästhetik unserer Produkte
Sie wünschen einen Rückruf für eine Produktberatung?
Hinterlassen Sie Ihre Telefonnummer und wir rufen Sie an Ihrem Wunschtermin zurück.
Optionen für Ihre Bestellung
Wählen Sie Ihr Wunschprodukt auf unserer Website und bestellen Sie direkt online.
Wir empfehlen, vorab unser Vertriebsteam zu kontaktieren – auf Wunsch auch bei Ihnen vor Ort. So klären wir Ihren Bedarf und erstellen ein individuelles Angebot mit Produkt, Zubehör, voraussichtlichem Preis und Zahlungsbedingungen. Anschließend können Sie bequem online bestellen und bezahlen.
Alternativ nimmt unser Vertrieb Ihre Bestellung für Sie auf und leitet – auf Basis des vereinbarten Produkts, der Menge, des Preises und Ihrer Zahlungsangaben – den Zahlungsvorgang ein.
Zahlungsarten
Vollzahlung im Voraus
Anzahlung + Restzahlung
Standard: 30 % Anzahlung des Gesamtbetrags (inkl. Versand) im Voraus, 70 % Restzahlung vor Lieferung
Maßgefertigte Produkte: 40 % Anzahlung, 60 % Restzahlung vor Lieferung
Bankgarantie für größere Projekte
- Bei größeren Projekten ab 35.000 € können Sie uns eine Bankgarantie über den Kaufpreis ausstellen. In diesem Fall müssen Sie keine Anzahlung leisten. Die Auszahlung der Garantie erfolgt erst bei Lieferung. (Nur über den Kundenservice möglich.)
Sichere Zahlungsoptionen
Banküberweisung
Sie erhalten eine Bestätigungs-E-Mail mit allen Zahlungsinformationen.
Überweisen Sie bequem online oder in Ihrer Bankfiliale. Bitte geben Sie immer Ihre Bestellnummer an.
Ihre Bestellung wird nach Eingang der Anzahlung bzw. Vollzahlung bestätigt.
Bankverbindung
Erste Bank
Kontoinhaber: CD-Commerce e.U
IBAN: AT91 2011 1846 6041 9200
BIC: GIBAATWWXXX
eps-Überweisung
Die eps-Überweisung ist ein von österreichischen Banken entwickeltes, sicheres Online-Bezahlverfahren. Die Zahlung erfolgt ausschließlich über Ihr vertrautes Online-Banking, ohne Weitergabe sensibler Daten (z. B. Kontonummer oder PIN) an den Webshop.
Kreditkarte (über Stripe)
Alle gängigen Kredit- und Debitkarten werden akzeptiert (außer American Express).
Die Zahlung erfolgt SSL-verschlüsselt und sofort.
Sie erhalten automatisch eine Bestellbestätigung mit Ihrer Bestellnummer.
Zahlung online oder telefonisch möglich.
Erstattungen
Sie können Ihre Bestellung vor oder innerhalb von 14 Tagen nach Lieferung stornieren und erhalten die geleistete Anzahlung bzw. den gesamten Rechnungsbetrag zurück – Transportkosten ausgenommen.
Bei Sonderanfertigungen gilt: Wurde die Produktion bereits begonnen oder abgeschlossen, ist die Anzahlung nicht erstattungsfähig und verbleibt im Eigentum von CD-Commerce e.U.
Mehr Informationen finden Sie im Website-Bereich „Rücksendungen“.
Weitere Informationen & Kontakt
Ausführliche Regelungen entnehmen Sie bitte dem Abschnitt „Bezahlung“ in unseren Allgemeinen Geschäftsbedingungen.
Für individuelle Fragen zum Zahlungsvorgang sind wir gerne für Sie da:
📞 +43 660 674 2719 · ✉️ office@blockbohlenhaus.at
Passendes Zubehör
Blockbohlenhaus - Qualität beginnt bei der Auswahl der Materialien
Bei Blocknohlenhaus.at setzen wir Qualität und Nachhaltigkeit an oberste Stelle. Unsere Premium Gartenhäuser entstehen aus sorgfältig ausgewähltem Kiefer- und Fichtenholz, das aus nachhaltig bewirtschafteten Wäldern stammt. Dieses Holz beeindruckt nicht nur durch seine natürliche Schönheit, sondern auch durch seine außergewöhnliche Langlebigkeit. Es bildet die Basis für erstklassige Holzbauten, die Ihrem Garten zeitlose Eleganz verleihen.
Austauschbare Position der gegenüberliegenden Wände!
Fußboden als optionales Zubehör erhältlich
Kostenlose Doppelverglasung ab 34 mm Wandstärke
Verstärkte Dachkonstruktion für langanhaltende Stabilität:
Erhalten Sie ein Dach, das Beständigkeit verspricht! Unsere verstärkte Dachkonstruktion setzt auf robuste Giebel und Dachsparren (45 mm x 135 mm oder 45 mm x 270 mm), um eine dauerhafte Stabilität zu gewährleisten und Ihr Dach vor möglichen Verformungen zu schützen.
Inklusive Fenster- und Türabdichtungen:
Unsere Gartenhäuser werden standardmäßig mit vormontierten Gummidichtungen für Fenster und Türen geliefert. Dies gewährleistet nicht nur eine effektive Abdichtung gegen Wasser, sondern sorgt auch für eine luftdichte und zugfreie Umgebung im Inneren Ihres Gartenhauses.
Hochwertiges Glas statt Kunststoff!
Bei uns setzen wir konsequent auf Qualitätsglas anstelle von Kunststoff! Alle Fenster und Türen unserer Gartenhäuser sind mit 4 mm dickem Glas ausgestattet. Diese bewusste Entscheidung unterstreicht unsere Hingabe zur Qualität und Ästhetik unserer Produkte
