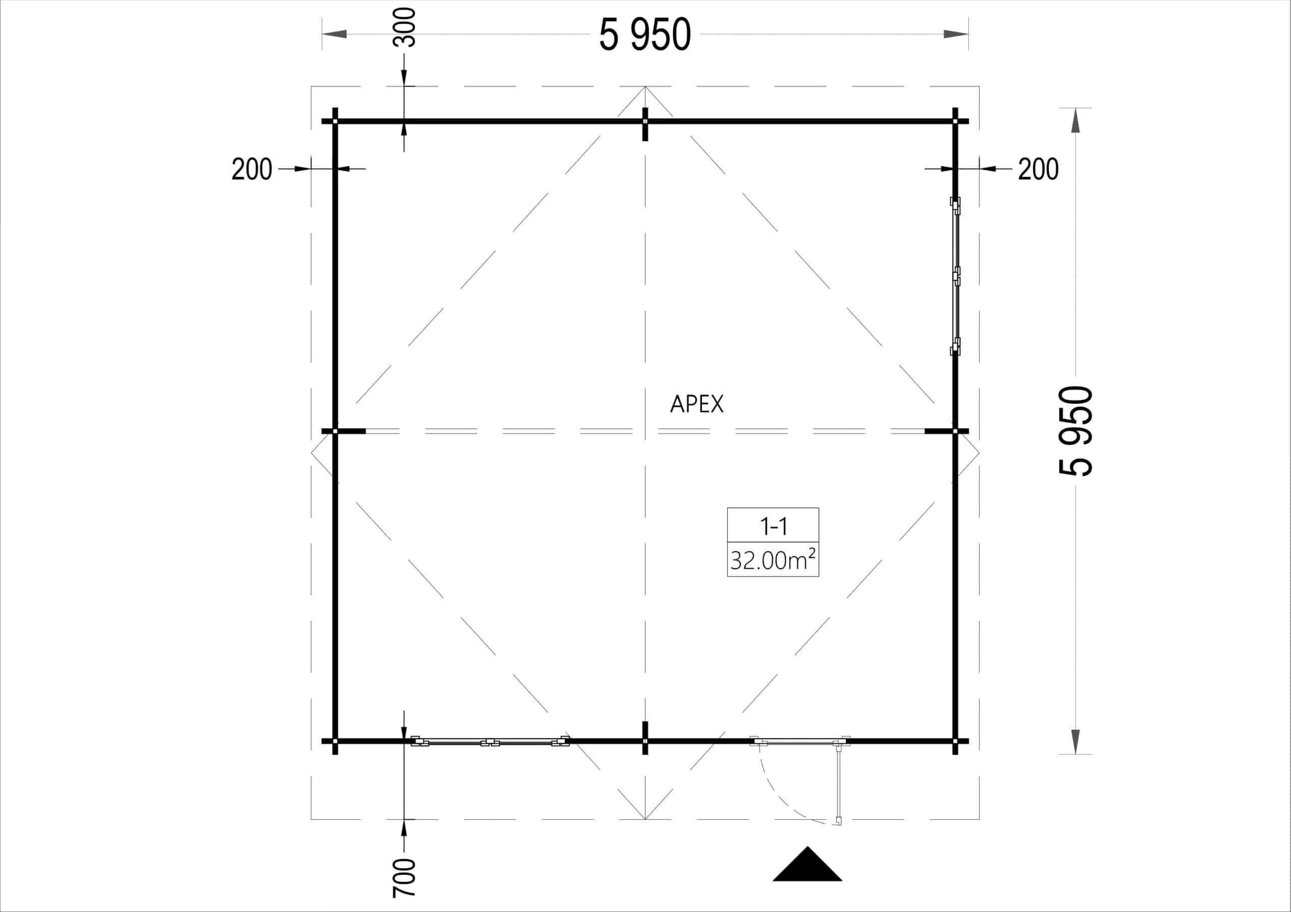
Gartenhaus Donau (44mm) 6x6m, 36m²
Wählen Sie die Optionen
-
Zurücksetzen
*Wandstärke
*Fußboden
Unsere Gartenhäuser werden standardmäßig ohne Fußboden, jedoch mit der Unterkonstruktion geliefert. Sie können jedoch einen Fußboden optional dazu bestellen.
Holzrahmen Fundament
Als Alternative zu unserem Betonfundament bieten wir ein maßgefertigtes, vorbehandeltes Holzrahmenfundament an, auf denen unserer Gebäude installiert werden können.
Montageservice
Der Preis für den Montageservice umfasst das Aufstellen der Blockhütte ab Oberkante des Fundaments (Wände, Dachkonstruktion, Fenster, Türen, Schlösser und sonstige Beschläge)
€ 7152,00 – € 7560,00
inkl. MwSt. Kostenloser versand
Lieferzeit: 8 bis 10 Wochen
Sie haben Fragen zum Artikel? Nutzen Sie unseren Rückrufservice oder das Kontaktformular.
Für alle Häuser bieten wir auch ein Metalldach an, nehmen Sie Kontakt mit uns auf, den Katalog können Sie hier herunterladen.
Für wärmeisolierte Häuser oder andere Wünsche wie PVC-Fenster oder Maßanfertigungen nutzen Sie bitte den Rückrufservice oder den Beratungsbutton.
Beschreibung
Das Premium Gartenhaus „Donau“ mit 36 m² ist zweifellos die optimale Wahl für anspruchsvolle Gartenliebhaber und Heimwerker
Die nach einer erstklassigen Gartenoase suchen. Dieses beeindruckende Gartenhaus verfügt über eine robuste Wandkonstruktion mit einer Stärke von 44 mm, die sowohl Stabilität als auch Langlebigkeit gewährleistet. Die doppelverglasten Türen und Fenster dieses Gartenhauses bieten nicht nur eine ausgezeichnete Lichtdurchlässigkeit, sondern auch eine hervorragende Wärmedämmung, was den Komfort im Innenraum erhöht.
Ein weiterer bemerkenswerter Vorteil dieses Gartenhauses ist die Möglichkeit einer spiegelverkehrten Montage. Das bedeutet, dass Sie je nach den Gegebenheiten in Ihrem Garten entscheiden können, wie Sie das Gartenhaus positionieren möchten. Diese Flexibilität ermöglicht es Ihnen, das Beste aus Ihrem Außenbereich herauszuholen und die Umgebung optimal zu nutzen.
Zusätzliche Highlights des Premium Gartenhauses „Donau“ mit 36 m² sind:
- Großzügiger Innenraum: Mit einer Grundfläche von 36 m² bietet das Gartenhaus viel Platz für unterschiedliche Verwendungszwecke. Es kann als gemütlicher Rückzugsort, Arbeitszimmer, Hobbyraum oder Lagerraum dienen.
- Hochwertige Materialien: Die Auswahl hochwertiger Materialien sorgt für Stabilität, Haltbarkeit und ein ästhetisches Erscheinungsbild.
- Vielseitige Anwendungsmöglichkeiten: Dank seiner Qualität und des großzügigen Innenraums kann das Premium Gartenhaus „Donau“ an unterschiedliche Bedürfnisse und Vorlieben angepasst werden.
- Ästhetisches Design: Das Gartenhaus wurde nicht nur aufgrund seiner Funktionalität, sondern auch wegen seines ansprechenden Designs ausgewählt. Es fügt sich nahtlos in Ihren Garten ein und trägt zur Aufwertung des Außenbereichs bei.
Das Premium Gartenhaus „Donau“ mit 36 m² ist zweifellos eine erstklassige Wahl für alle, die höchste Qualität und Funktionalität in ihrem Garten wünschen. Es bietet ausreichend Platz für vielfältige Aktivitäten und lässt sich dank der spiegelverkehrten Montage flexibel an die Gegebenheiten vor Ort anpassen.
Zusätzliche Informationen
| Größe | 6000 × 6000 cm |
|---|---|
|
|
|
|
|
|
|
|
|
|
|
|
|
|
, |
|
|
|
|
|
|
|
|
|
|
|
|
|
|
|
|
|
|
|
|
|
|
|
|
|
|
|
|
|
|
|
|
|
| Grundform | |
|
|
|
|
|
|
| Innenmaß | |
|
|
|
| Herstellergarantie | |
|
|
|
| Dachwinkel | |
|
|
|
|
|
|
| Dachüberstand | , |
| Fläche |
Sie wünschen einen Rückruf für eine Produktberatung?
Hinterlassen Sie Ihre Telefonnummer und wir rufen Sie an Ihrem Wunschtermin zurück.
Blockbohlenhaus - Qualität beginnt bei der Auswahl der Materialien
Bei Blocknohlenhaus.at setzen wir Qualität und Nachhaltigkeit an oberste Stelle. Unsere Premium Gartenhäuser entstehen aus sorgfältig ausgewähltem Kiefer- und Fichtenholz, das aus nachhaltig bewirtschafteten Wäldern stammt. Dieses Holz beeindruckt nicht nur durch seine natürliche Schönheit, sondern auch durch seine außergewöhnliche Langlebigkeit. Es bildet die Basis für erstklassige Holzbauten, die Ihrem Garten zeitlose Eleganz verleihen.
Austauschbare Position der gegenüberliegenden Wände!
Fußboden als optionales Zubehör erhältlich
Kostenlose Doppelverglasung ab 34 mm Wandstärke
Verstärkte Dachkonstruktion für langanhaltende Stabilität:
Erhalten Sie ein Dach, das Beständigkeit verspricht! Unsere verstärkte Dachkonstruktion setzt auf robuste Giebel und Dachsparren (45 mm x 135 mm oder 45 mm x 270 mm), um eine dauerhafte Stabilität zu gewährleisten und Ihr Dach vor möglichen Verformungen zu schützen.
Inklusive Fenster- und Türabdichtungen:
Unsere Gartenhäuser werden standardmäßig mit vormontierten Gummidichtungen für Fenster und Türen geliefert. Dies gewährleistet nicht nur eine effektive Abdichtung gegen Wasser, sondern sorgt auch für eine luftdichte und zugfreie Umgebung im Inneren Ihres Gartenhauses.
Hochwertiges Glas statt Kunststoff!
Bei uns setzen wir konsequent auf Qualitätsglas anstelle von Kunststoff! Alle Fenster und Türen unserer Gartenhäuser sind mit 4 mm dickem Glas ausgestattet. Diese bewusste Entscheidung unterstreicht unsere Hingabe zur Qualität und Ästhetik unserer Produkte
Ähnliche Produkte
Blockbohlenhaus - Qualität beginnt bei der Auswahl der Materialien
Bei Blocknohlenhaus.at setzen wir Qualität und Nachhaltigkeit an oberste Stelle. Unsere Premium Gartenhäuser entstehen aus sorgfältig ausgewähltem Kiefer- und Fichtenholz, das aus nachhaltig bewirtschafteten Wäldern stammt. Dieses Holz beeindruckt nicht nur durch seine natürliche Schönheit, sondern auch durch seine außergewöhnliche Langlebigkeit. Es bildet die Basis für erstklassige Holzbauten, die Ihrem Garten zeitlose Eleganz verleihen.
Austauschbare Position der gegenüberliegenden Wände!
Fußboden als optionales Zubehör erhältlich
Kostenlose Doppelverglasung ab 34 mm Wandstärke
Verstärkte Dachkonstruktion für langanhaltende Stabilität:
Erhalten Sie ein Dach, das Beständigkeit verspricht! Unsere verstärkte Dachkonstruktion setzt auf robuste Giebel und Dachsparren (45 mm x 135 mm oder 45 mm x 270 mm), um eine dauerhafte Stabilität zu gewährleisten und Ihr Dach vor möglichen Verformungen zu schützen.
Inklusive Fenster- und Türabdichtungen:
Unsere Gartenhäuser werden standardmäßig mit vormontierten Gummidichtungen für Fenster und Türen geliefert. Dies gewährleistet nicht nur eine effektive Abdichtung gegen Wasser, sondern sorgt auch für eine luftdichte und zugfreie Umgebung im Inneren Ihres Gartenhauses.
Hochwertiges Glas statt Kunststoff!
Bei uns setzen wir konsequent auf Qualitätsglas anstelle von Kunststoff! Alle Fenster und Türen unserer Gartenhäuser sind mit 4 mm dickem Glas ausgestattet. Diese bewusste Entscheidung unterstreicht unsere Hingabe zur Qualität und Ästhetik unserer Produkte
